Shipton Oliffe village hall extension, remodel and refurbishment

Nestled in the heart of Shipton Oliffe, the historic Shipton Oliffe Reading Room, dating back to 1909, was once in a state of disrepair. Serving as the central hub for the village community, this cherished heritage structure was the go-to venue for functions, events, clubs, classes, meetings, and parties. Recognising its significance, a restoration project was initiated to breathe new life into this iconic building, ensuring that it could better serve the needs of Shipton Oliffe's population.

Reviving a community icon

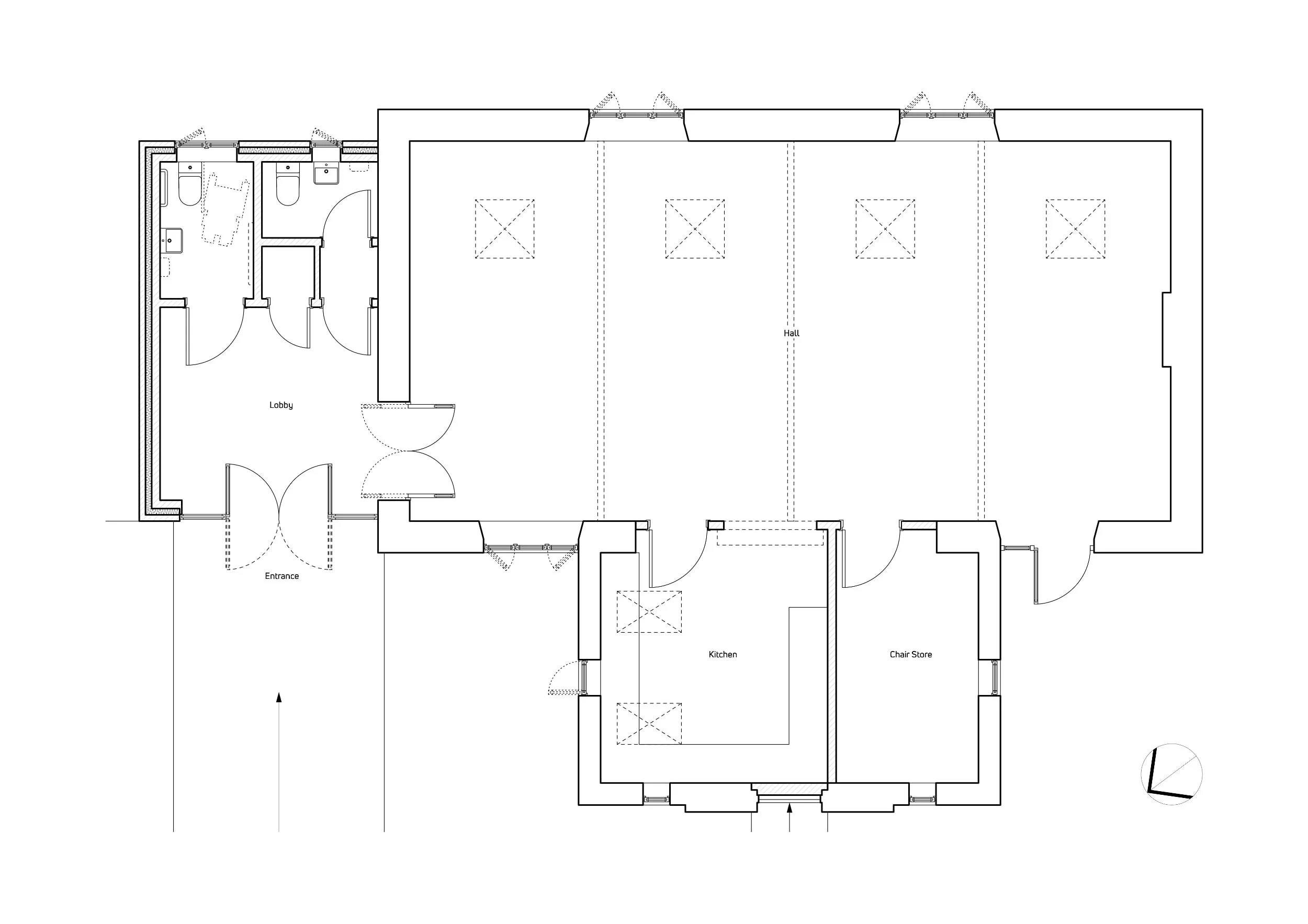
The Shipton Oliffe Reading Room underwent a remarkable transformation, combining both respect for its rich history and a modern touch to enhance its utility. The addition of a side extension, internal reconfiguration, and a comprehensive refurbishment breathed fresh life into the old structure.

Enhanced capacity and usability

The restoration project has significantly expanded the capacity and usability of the Reading Room. This has created a more welcoming and functional space for hosting a variety of community activities and events. From social gatherings to educational classes, this historic venue now offers state-of-the-art facilities that cater to the diverse needs of the Shipton Oliffe community.

Preserving heritage for future generations

The sympathetic modernisation of the Shipton Oliffe Reading Room ensures that it remains a cornerstone of the community for generations to come. As a vital space for community gatherings and events, it stands as a testament to the commitment of preserving heritage while meeting the evolving needs of the modern world.

The restoration is a shining example of how a historic village hall can be revived and reimagined to serve the present and future generations. This iconic building continues to be the heart of Shipton Oliffe, offering a valuable space for community life, events, and activities, all while preserving its cherished history.

 
Previous
Previous

Dutch barn conversion and new build

Next
Next

New build rental lodge with garage