New build holiday rental accommodation with garage

This single-storey new build holiday rental complete with a garage was designed for a lucrative secondary income. Not just a getaway destination; it’s an investment in both relaxation and financial prosperity.

An energy-optimised build ensures sustainable living while maximising cost efficiency. By prioritising sustainability, this approach not only contributes to a reduced environmental impact and long-term cost savings, but also positions your holiday rental as a desirable and conscientious choice for eco-conscious travellers. An investment that is both environmentally and financially sound.

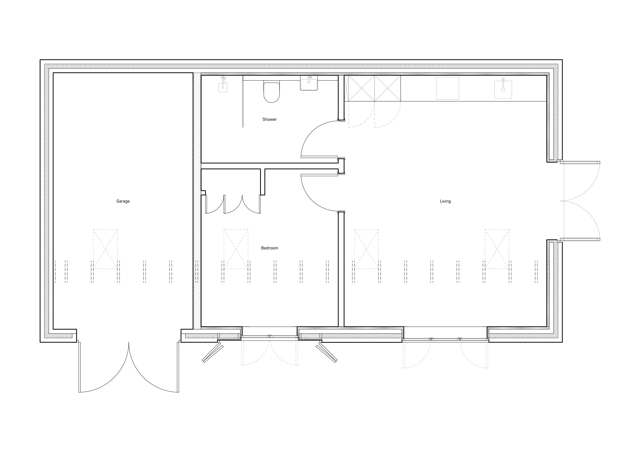
Creating a spacious open plan living area seamlessly connected with a modern kitchen will  provide an inviting space for socialising and entertaining. And thoughtfully crafted design that strikes a balance between functionality and aesthetics sets the stage for unforgettable moments with family, friends or guests.

A generously sized ensuite bedroom provides luxury and comfort to enhance the overall guest experience. A sophisticated space that offers a retreat within a retreat, ensures privacy and indulgence, providing an oasis of tranquility during your holiday stay or that of your valued guests.

The inclusion of a garage adds both convenience and appeal, offering secure storage for belongings and contributing to the overall efficiency of your holiday rental. A well-equipped garage not only caters to guests with vehicles but also positions your property as a practical and desirable choice for a wide range of travellers. Enhancing the overall property value, it also makes arrivals and departures hassle-free for both you and your guests.

Whether you're a seasoned property investor or someone looking to dip their toes into the world of secondary income, a new build holiday rental offers the perfect blend of modern living, convenience, and income potential.

Contact us today to explore the possibilities and elevate your architectural investment strategy.

 
Previous
Previous

Historic village hall extension and refurbishment

Next
Next

Two storey stone cottage gable extension