0
Skip to Content
Somerset Architectural, Design, Drawing & Planning Services
Home
Process
Work
Listed
New Build
Drawings
3D
Live view
Modelling
Environment
Contact
Somerset Architectural, Design, Drawing & Planning Services
Home
Process
Work
Listed
New Build
Drawings
3D
Live view
Modelling
Environment
Contact
Home
Process
Work
Listed
New Build
Drawings
Folder: 3D
Back
Live view
Modelling
Environment
Contact
Modern two-story house with a sloped roof, large glass windows, and a garage on the right. The house is surrounded by green grass and trees, under a partly cloudy sky. View fullsize
Modern house with white brick walls, large glass windows, and a sloped dark roof, surrounded by green grass and trees, under a blue sky with some clouds. View fullsize
Modern house with white brick exterior, black window frames, large glass entrance, and a gabled roof, surrounded by green lawn and trees under a partly cloudy sky. View fullsize
Modern house with a mix of light-colored stone and dark metal exterior, large glass windows, situated on a grassy landscape with a partly cloudy sky. View fullsize
Modern two-story house with a sloped roof, large glass windows, and a garage on the right. The house is surrounded by green grass and trees, under a partly cloudy sky.
Modern house with white brick walls, large glass windows, and a sloped dark roof, surrounded by green grass and trees, under a blue sky with some clouds.
Modern house with white brick exterior, black window frames, large glass entrance, and a gabled roof, surrounded by green lawn and trees under a partly cloudy sky.
Modern house with a mix of light-colored stone and dark metal exterior, large glass windows, situated on a grassy landscape with a partly cloudy sky.

Contemporary natural stone 4 bedroom home design

 
3D Live View
A contemporary natural stone detached 4 bedroom home with a more typical footprint arrangement, integral garage, wood cladding and full balcony to master suite.
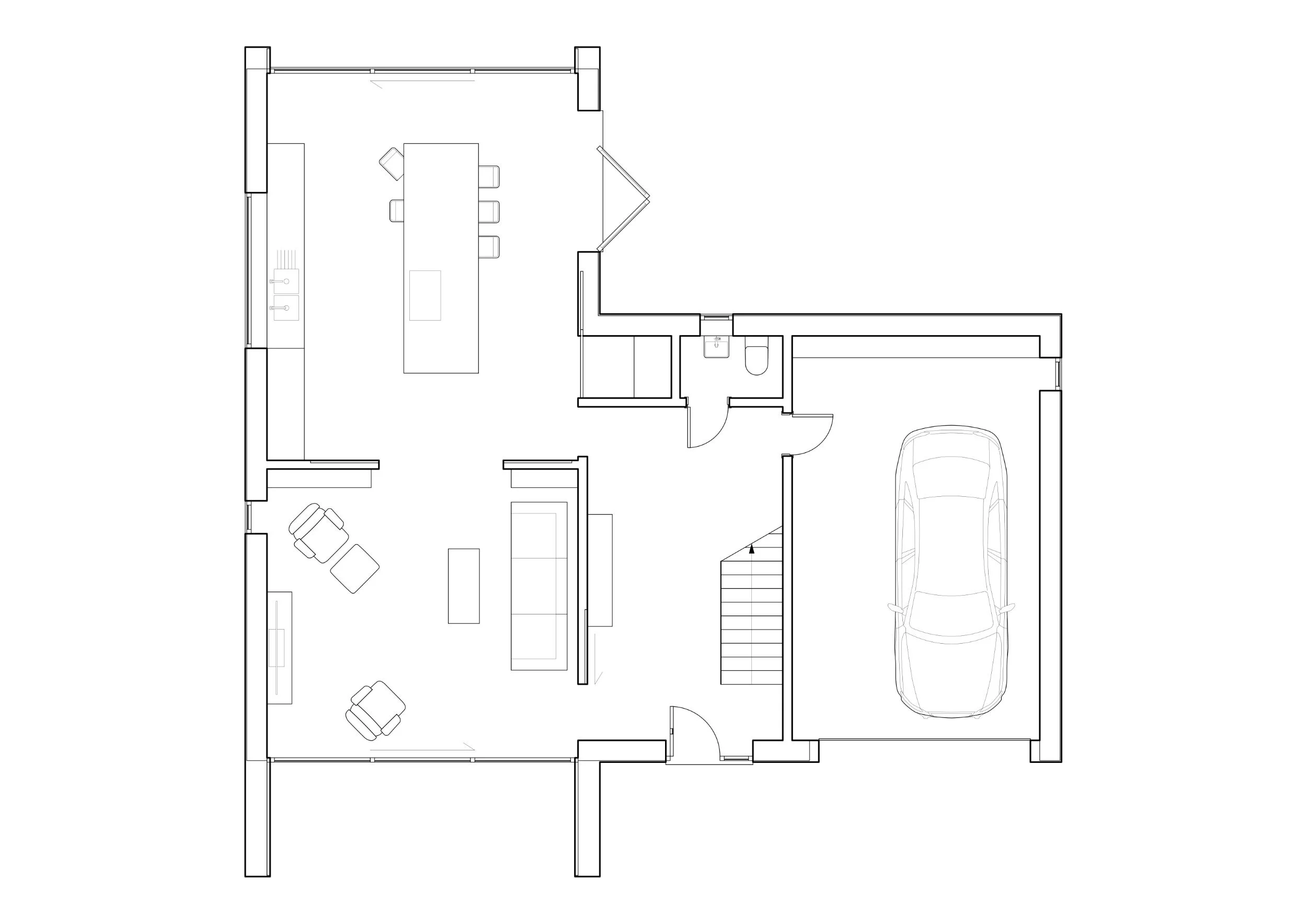
Example Ground-floor View fullsize

Example Ground-floor

Example First-floor View fullsize

Example First-floor

Example Ground-floor
Example First-floor
 

Rural Villa >

 

Taunton, United Kingdom

01823 617717
hello@somersetarchitectural.com

Somerset Architectural is a trading name of Designrock Ltd. Co. Reg: 6129117. VAT no. 908 9471 87

 

Work

New Build

Process

Drawings

3D Live View

Modelling

Listed

Environment

Contact