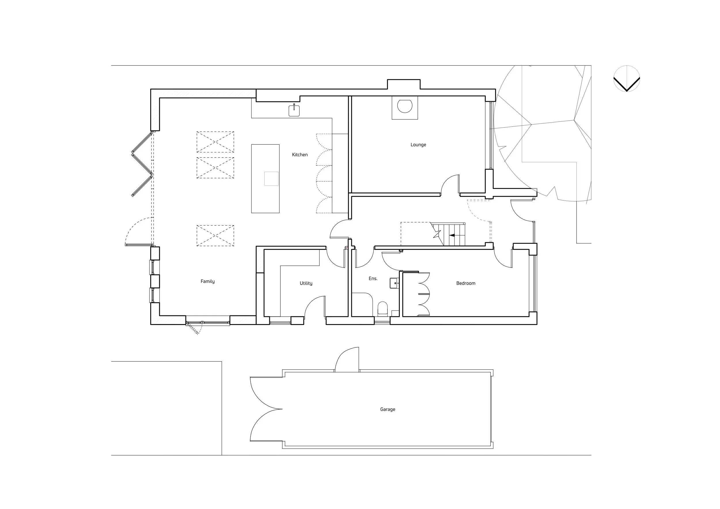
Garage conversion and maximum rear extension

With the addition of cedar cladding and sleek black-framed windows, the front and rear of this family home underwent a remarkable transformation. The inclusion of roof windows in the requested maximum rear extension became the key to creating a bright, inviting family kitchen, lounge, and diner—perfect for modern family living.

A garage conversion is a cost-effective method of expanding your living space without sacrificing garden space. Not only does it offer extra room for your family's needs, but it can also increase the value of your home by up to 10%. This option becomes particularly attractive if your garage serves as little more than a storage area, having long lost its original purpose of housing a car, especially when off-street parking is available.

The potential applications for a converted garage are virtually limitless. You can tailor the space to become a cozy family snug, an open kitchen-diner, a practical utility room, a fun-filled playroom, a productive home office, a convenient home gym, or an additional bedroom. For those fortunate enough to possess a double garage, the choice exists to convert half the space while still maintaining a sheltered parking area.

One of the appealing aspects of a garage conversion is its relatively low susceptibility to planning complications. In most cases, it is classified as permitted development unless your property is situated within a conservation area where permitted development rights have been restricted. This means you can often embark on this transformation with minimal red tape and bureaucracy.

The versatility and practicality of this home transformation offer a unique opportunity to optimise space and elevate the functionality of your property. It not only enriches the home's living space but also caters to various lifestyle needs. By creatively repurposing underutilised space, a garage conversion and rear extension can significantly redefine the character and value of your home, ensuring a more adaptable and lucrative living environment for the future.

 
Previous
Previous

Kitchen-diner extension

Next
Next

New attached garage