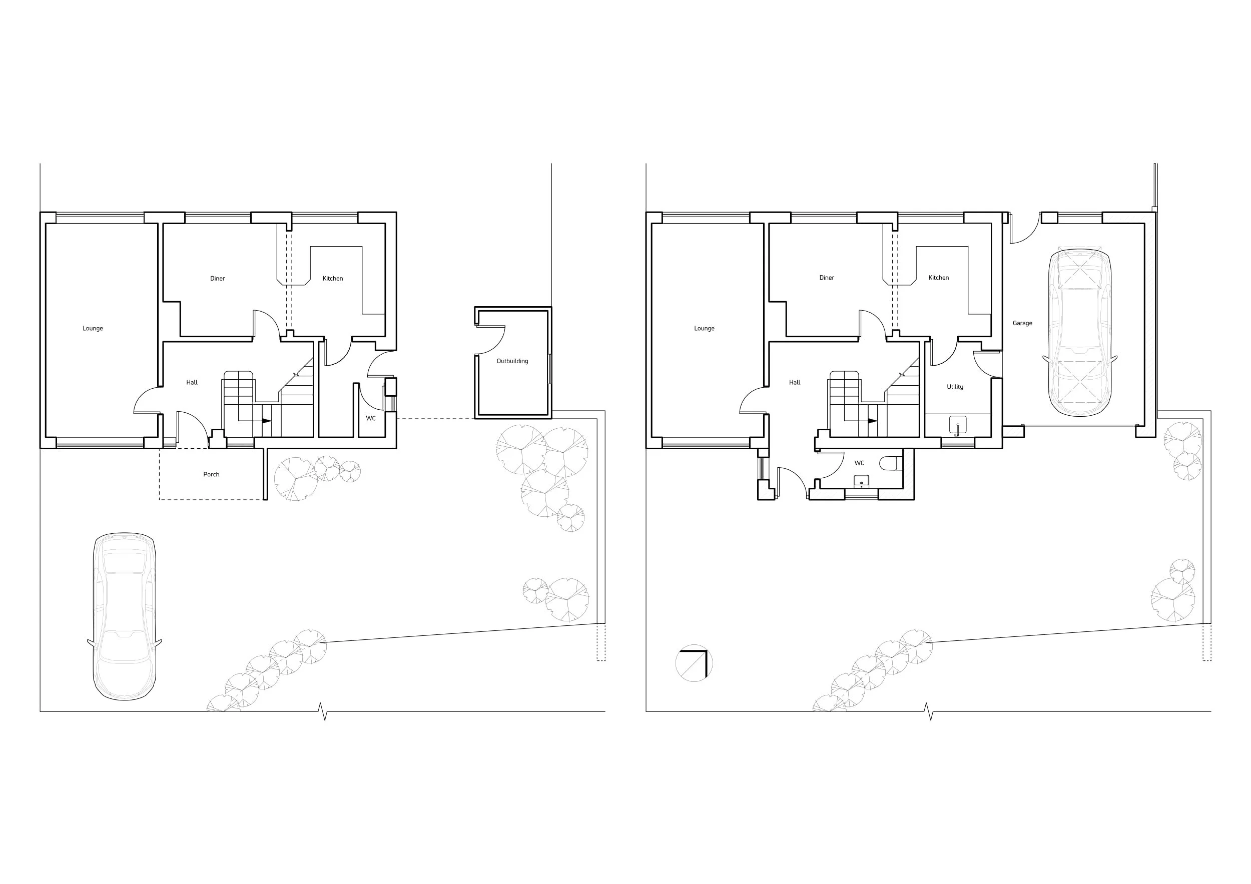
Front porch house extension design and planning

The addition of a front porch, even a simple one, can have a profound impact on any property. When thoughtfully designed and constructed to exacting standards, a porch offers a warm and energy-efficient entrance that not only enhances the aesthetics but also helps in reducing heat loss in your home.

A well-planned front porch serves as an inviting gateway to your property, creating a welcoming atmosphere that leaves a lasting first impression on guests and residents alike. It offers a sheltered area for protection against the elements, making it the perfect spot to shake off rain or snow, ensuring that dirt, mud, and wet gear remain outside your living space.

Beyond its role as a shield against the weather, a front porch adds practical value to your property. It becomes a valuable space to store coats, shoes, bags, and other everyday essentials, promoting a sense of organisation and cleanliness. By keeping the clutter and mess at bay, a porch helps maintain the tidiness of your living area and reduces the need for extensive cleaning and maintenance.

Moreover, a well-designed front porch can significantly enhance the kerb appeal of your property, making it more visually appealing and appealing to potential buyers. It's a small addition that can make a big difference, not only in terms of aesthetics but also in terms of convenience and energy efficiency.

It’s more than just an architectural feature; it's a valuable asset that offers a warm and welcoming entrance, reduces heat loss, and provides practical storage and organisation space. Whether it's for improving your daily living or enhancing the market value of your property, a front porch is a simple yet impactful addition that can transform the look and functionality of your home.

Previous
Previous

New attached garage

Next
Next

Two storey wrap around extension