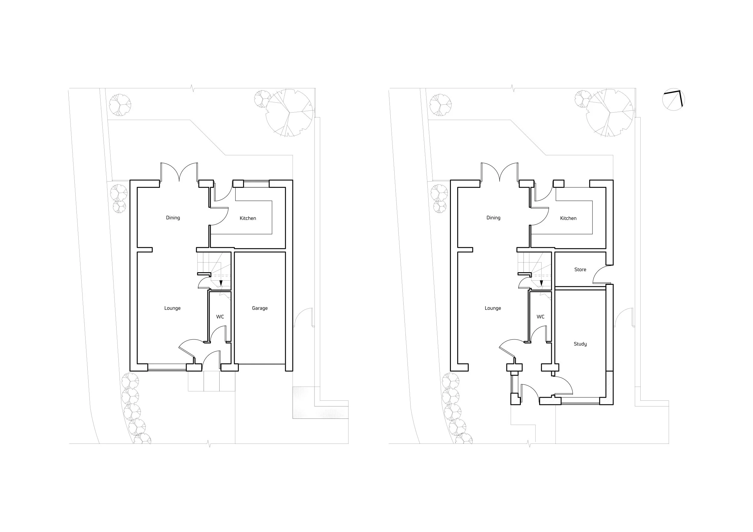
Front house extension design and garage conversion

The decision to extend your home forward and convert the integral garage stands as a transformative endeavour that offers multiple benefits. This front extension not only provides additional flexible family living space but also ensures the retention of much-needed storage space, effectively balancing both functionality and utility.

The extension of your home forward creates an opportunity to expand the living area, offering extra space for a range of family activities and purposes. It can be transformed into a welcoming family room, a dedicated playroom, a home office, or even an elegant dining area, depending on your specific needs and preferences. This added living space adapts to your family's lifestyle and requirements, providing greater flexibility for daily life.

Moreover, the conversion of the integral garage within the front extension is a strategic decision. It ensures that valuable storage space is preserved, addressing the practical needs of homeowners. Garages are often crucial for housing tools, sporting equipment, bicycles and other essential items. By converting the garage as part of the front extension, you can create more living space while still maintaining a place for storage, making your home more organised and efficient.

In addition to enhancing your daily living experience, a front extension can also have a positive impact on the market value of your property. It can increase the square footage and improve the layout and functionality of your home, making it more appealing to potential buyers in the future.

In essence, it represents a transformative choice that balances family living space and storage needs. It provides the flexibility to adapt your home to your family's evolving requirements while ensuring that essential storage space remains intact, enhancing your daily life and the potential value of your property and in so doing, making it a valuable and versatile addition to your home.

Previous
Previous

Two storey wrap around extension

Next
Next

Three storey rear extension combining two houses