









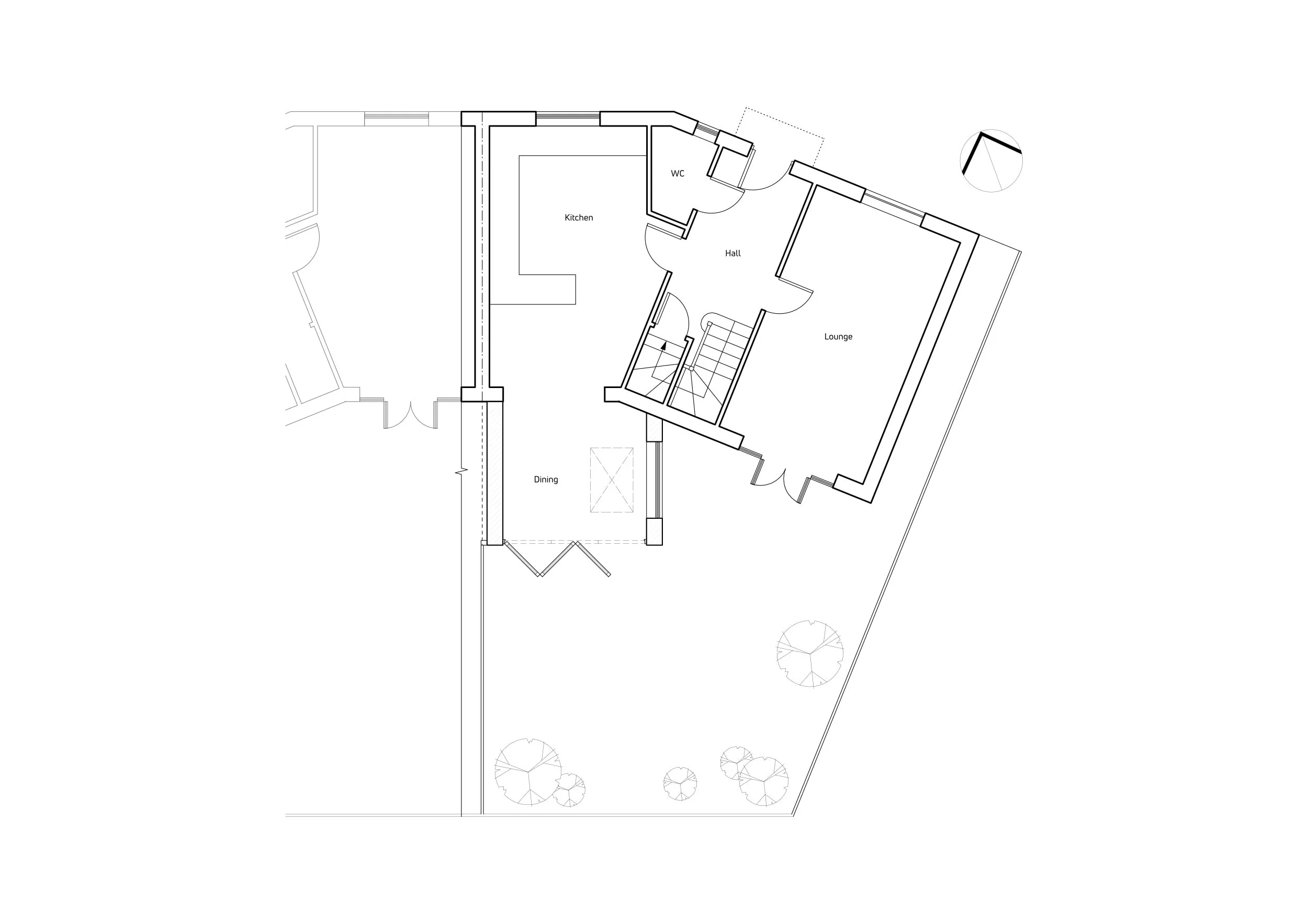
Dining room house extension design and planning
The opportunity to extend your home into the generous expanse of a well-proportioned garden is an inviting prospect for a dining room extension. Through the addition of a single-storey rear extension complemented by the introduction of roof windows, a bright and expansive kitchen-diner emerges, introducing a rejuvenating dimension to your living area.
A well-designed rear extension is not just an increase in square footage; it's a strategic enhancement that profoundly alters the rhythm of daily life in your home. Quality architectural design, in harmony with a thoughtful floor plan layout, can revolutionise the functionality of your living space, making it more efficient for daily activities while simultaneously boosting your property's value. This forward-thinking investment has the potential to significantly enhance the appeal and market value of your home, ensuring a higher selling price when the time comes.
For homeowners in the Taunton area, choosing a house extension proves to be a pragmatic and cost-efficient solution, especially in catering to a growing family. Instead of grappling with the substantial expenses, complications and stresses associated with moving to a larger house, extending your current home offers a more convenient and personalised alternative. This choice not only addresses your immediate spatial requirements but also upholds the comfort and familiarity of your existing environment.
The decision to invest in a dining room extension goes beyond mere expansion of space; it's about creating a living space that seamlessly aligns with your family's evolving needs and aspirations. The advantages of additional space, improved functionality and increased property value render this choice an invaluable investment, promising a more flexible and potentially profitable living environment for the future. Your home becomes not just a place to live, but a space that embodies your family's dreams and growing lifestyle.