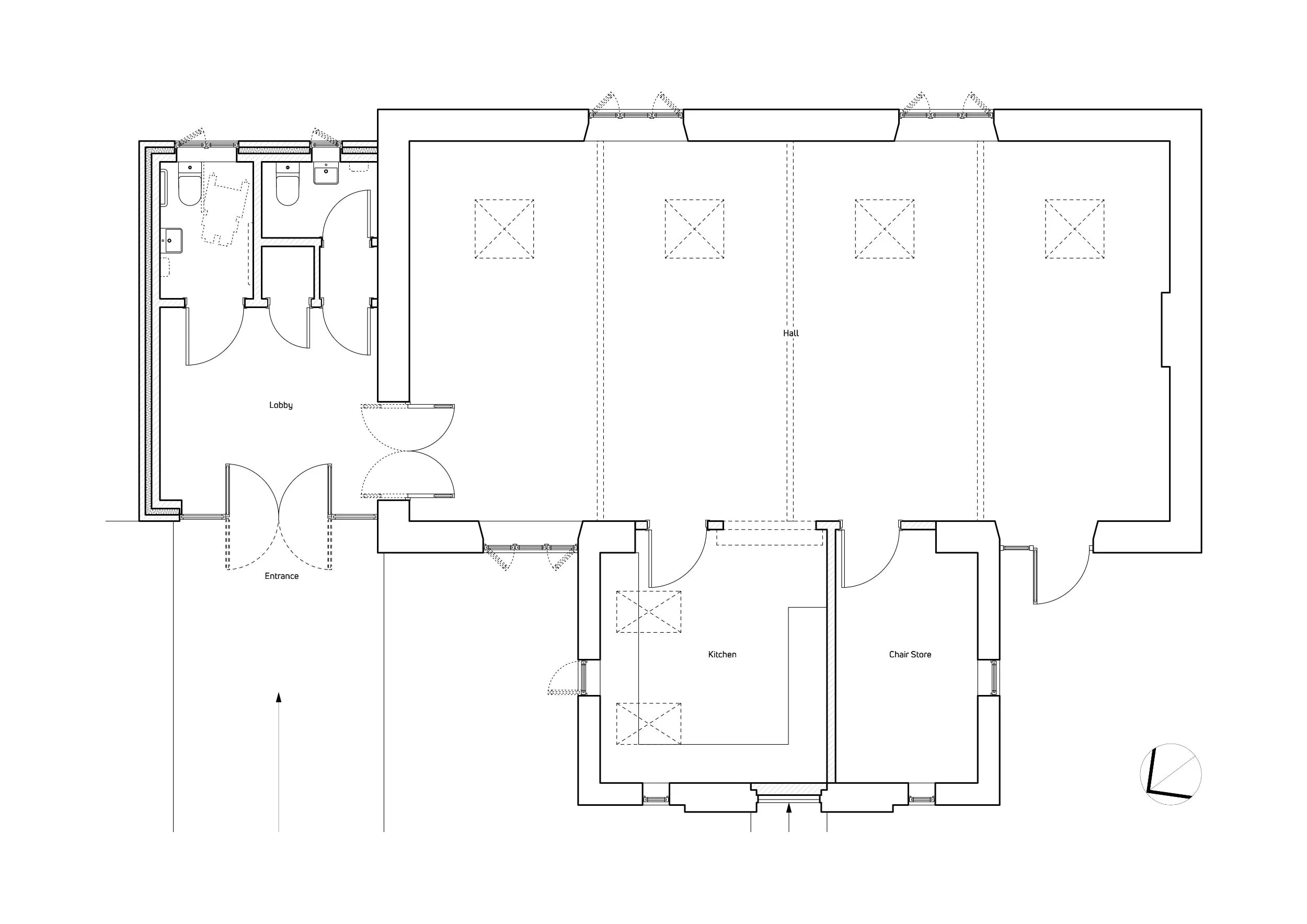
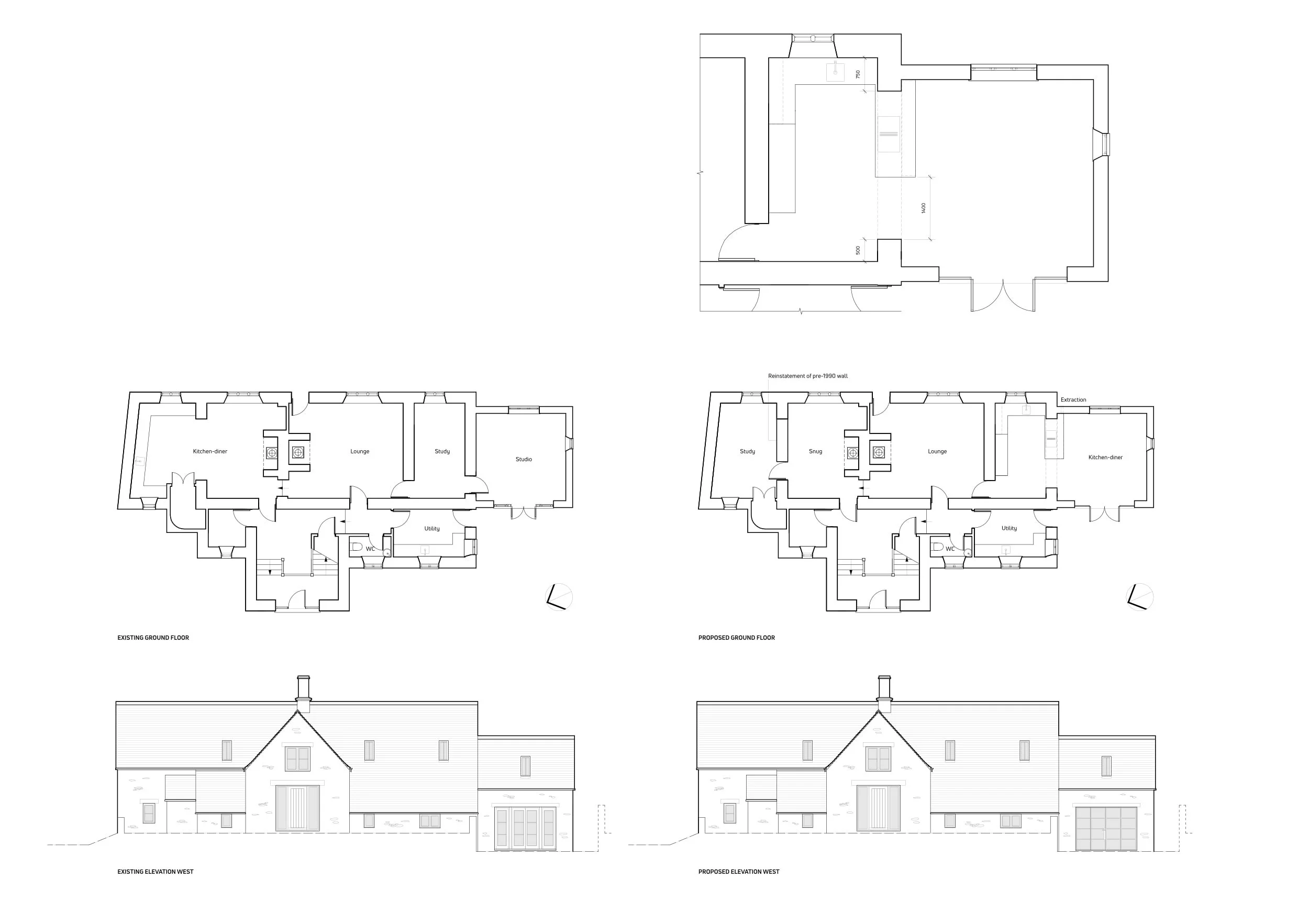
Example planning drawings
With an emphasis on quality design and communication, we produce clear and accurate architectural drawings, plans, elevations and visuals, needed both for planning and liaising with potential builders.






















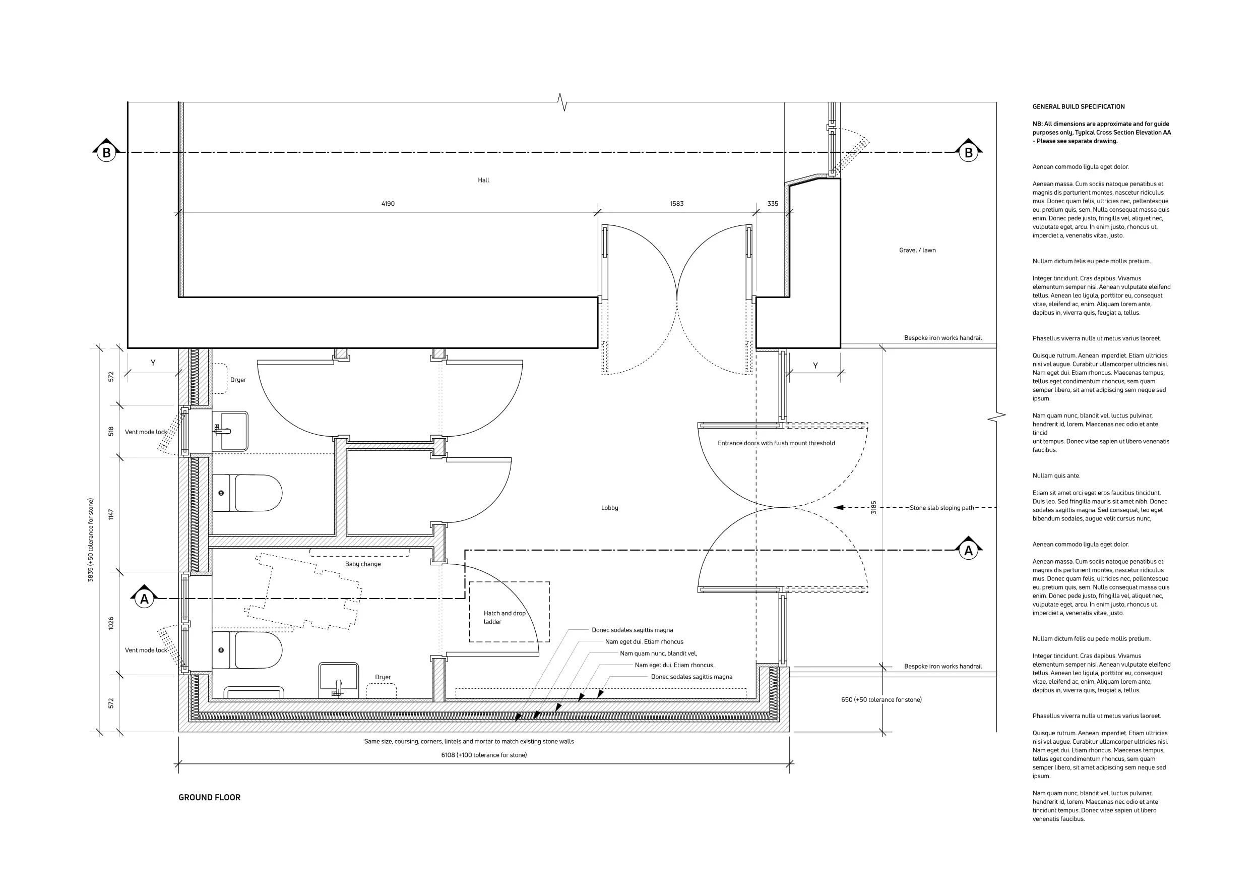
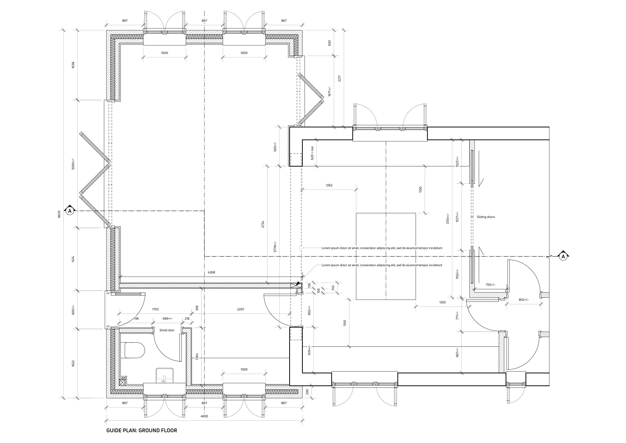
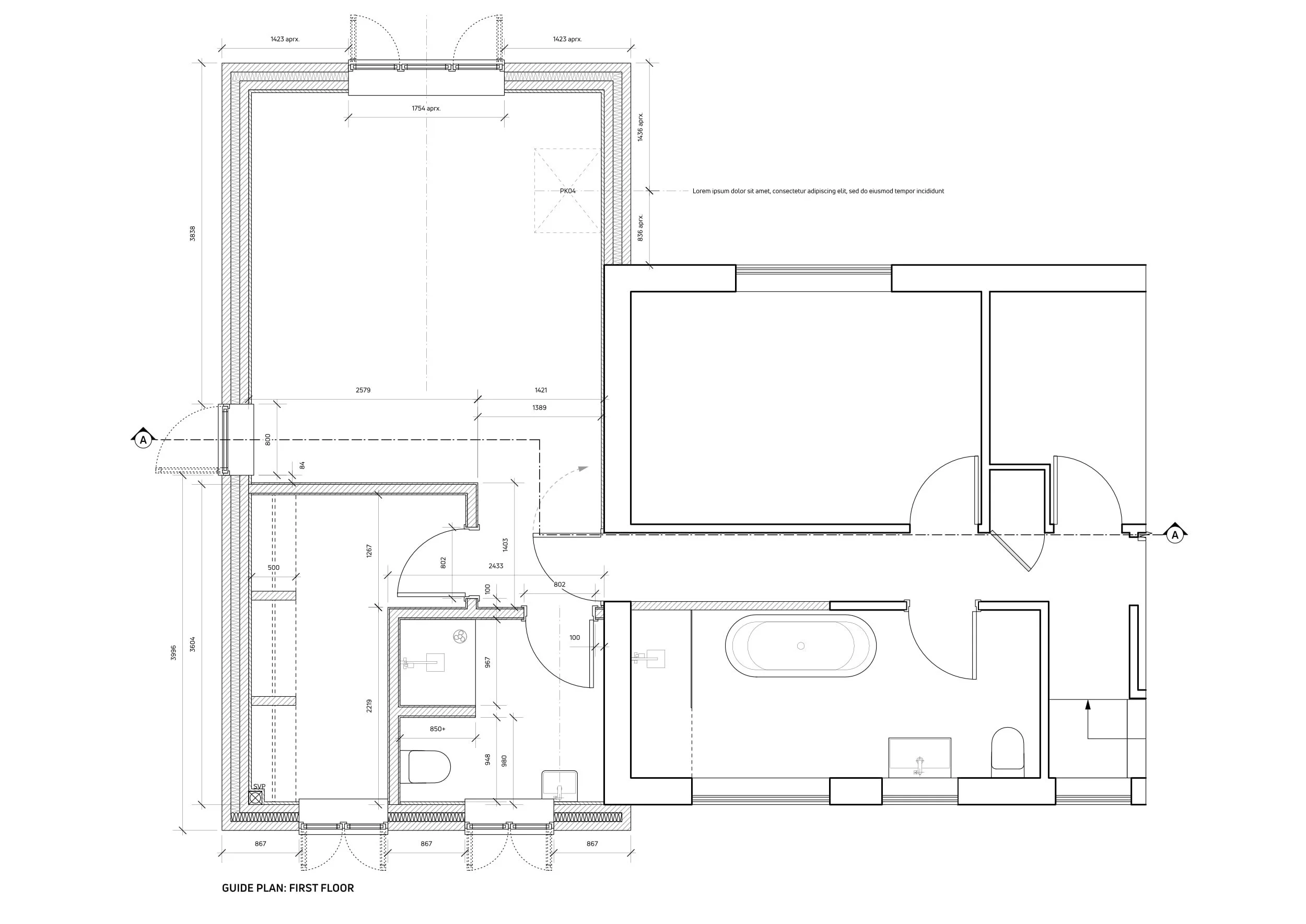
Example build specification drawings
With a detailed build specification guide you can guarantee that your new build and additional space is of the quality and performance that you're expecting. It also gives builders the information they need to price accurately, so as you can compare quotes.







